Augsburg-Oberhausen-Gepflegte 2-ZKB Maisonette-Wohnung mit Dachterrasse, Balkon und Tiefgarage – Sofort frei
- Informationen
- Kaufpreis in (EUR) 219.000,00
- Baujahr 1992
- Wohnfläche in m² 48,8
- Anzahl Zimmer 2,0
- Objektnummer 11-UC-AWM-16238
| Objektart | wohnung |
| Anbieterkennung | 25173 |
| Objekt / Online - Nr. | 11-UC-AWM-16238 |
Preise
| Kaufpreis in (EUR) | 219.000,00 |
| Provision in (EUR) | 3,57% Käufercourtage inkl.19% Mwst. |
Flächen
| Wohnfläche in m² | 48,8 |
| Anzahl Zimmer | 2,0 |
| Anzahl Schlafzimmer | 1,0 |
| Anzahl Badezimmer | 1,0 |
| Anzahl Stellplätze | 1,0 |
Ausstattung
| Heizungsart | Zentral |
| Befeuerung | Gas |
| Fahrstuhl | Personen |
Objektzustand / Energiepass
| Baujahr | 1992 |
| Zustand | Gepflegt |
| Energiepass |
|
Objekttitel
Gepflegte 2-ZKB Maisonette-Wohnung mit Dachterrasse, Balkon und Tiefgarage – Sofort frei
Lage
Die Wohnung liegt im Augsburger Stadtteil Oberhausen und zählt zu den wichtigsten Verkehrsachsen der Stadt. Sie bietet eine hervorragende Anbindung an die Innenstadt sowie in nördlicher Richtung nach Gersthofen. Der nahegelegene Bahnhof Augsburg-Oberhausen sowie die Straßenbahnlinien 2 und 4 gewährleisten eine optimale Anbindung an den öffentlichen Nah- und Regionalverkehr. Das Umfeld befindet sich im Wandel und verbindet bestehende Infrastruktur mit moderner Wohnentwicklung.
Ausstatt_beschr
***Allgemein***
Massivbauweise aus dem Jahr 1992
Personenaufzug
Kellerabteil vorhanden
Fahrradraum vorhanden
Balkon und Terrasse
Tiefgaragenstellplatz
*** Wohnung ***
Küchenzeile mit Elektrogeräten im Kaufpreis enthalten mit Fliesenboden
Badezimmer mit Dusche und WC mit Fliesenboden
Flur mit Fliesenboden
Alle Schlafzimmer und Wohnzimmer mit Laminatboden
*** Nebenkosten und Rücklagen ***
Die Nebenkosten belaufen sich laut Wirtschaftsplan 2025 auf ca. 247,82 EUR monatlich.
Die Rücklagen werden mit monatlich ca. 56,08 EUR angegeben.
Die gesamten Rücklagen belaufen sich auf ca. 167.000,00
Der rechnerische Anteil auf diese Einheit bezogen beläuft sich auf ca. 2.973,88 EUR.
Die Wohnung ist sofort bezugsfrei!
Für weitere Rückfragen stehen wir Ihnen gerne zur Verfügung. Bitte fordern Sie in diesem Portal über den Button „Anbieter kontaktieren“ zunächst einfach online unser Exposé an. Nach dem Exposé-Download erhalten Sie von uns einen Link zur Einbuchung für einen Besichtigungs-Slot.
(alle Angaben unverbindlich + ohne Gewähr. Irrtum + Fehler vorbehalten.)
Objektbeschreibung
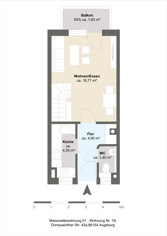
Diese gepflegte 2-Zimmer-Maisonette-Wohnung mit ca. 49 m² Wohnfläche überzeugt durch ihren durchdachten Grundriss und ein angenehmes Wohnambiente. Sie befindet sich im 2. Obergeschoss eines modernen Mehrfamilienhauses und ist bequem per Aufzug erreichbar.
Der helle Wohnbereich bietet ausreichend Platz zum Wohnen und Entspannen. Die integrierte Küchenzeile ist funktional gestaltet und fügt sich harmonisch in den Raum ein. Über die interne Treppe gelangt man in den oberen Bereich der Maisonette, der sich ideal als Schlaf- oder Arbeitsbereich nutzen lässt.
Ein besonderes Highlight ist der Balkon und zusätzlich die terrassenähnliche Außenfläche, die zum Verweilen im Freien einlädt.
Abgerundet wird das Angebot durch einen Stellplatz in der Tiefgarage, der komfortables und sicheres Parken ermöglicht.
Die Wohnung eignet sich ideal für Singles oder Paare, die eine moderne und gut geschnittene Wohnung in angenehmer Lage suchen.
Die Wohnung ist sofort frei!
Sonstige_angaben
Wir sind Ihr kompetenter Partner rund um das Thema Immobilien.
Unser Immobilienbüro hat sich auf die Vermarktung von Wohnimmobilien für den Kapitalanleger und den Eigennutzer spezialisiert.
Wir bieten Ihnen mit der langjährigen Erfahrung unserer Experten optimale Voraussetzungen, um den höchsten Anforderungen an eine zielgerichtete Planung für Ihr Vorhaben gerecht werden zu können.
Unser Immobilienteam besteht aus zahlreichen Spezialisten mit langjähriger Reputation in der Immobilienbranche.
Diese Objektbeschreibung wurde aufgrund von Angaben des Verkäufers erstellt. Der Makler hat diese Information soweit wie möglich überprüft, übernimmt aber für deren Richtigkeit keine Haftung.
1. Maklervertrag
Mit Inanspruchnahme der Maklertätigkeit bzw. Aufnahme der Verhandlungen mit dem Verkäufer/Vermieter aufgrund des beiliegenden Angebotes kommt der Maklervertrag mit dem Kaufinteressenten/ Mietinteressenten zu den nachfolgenden Bestimmungen zustande.
2. Angebot
Das Angebot des Maklers versteht sich freibleibend und unverbindlich und ist nur für den Adressdaten bestimmt. Jede Weitergabe des Angebotes/ der Information ist nur mit unserer vorherigen schriftlichen Zustimmung gestattet. Unbefugte Weitergabe löst nach der Rechtsprechung hierzu, einen Schadensersatz aus.
3. Vorkenntnis
Ist die vom Makler nachgewiesene Gelegenheit zum Abschluss des Vertrages dem Empfänger bereits bekannt, erklärt er das dem Makler innerhalb einer Frist von 3 Tagen und führt den Nachweis, woher seine Kenntnis stammt. Spätere Widersprüche braucht der Makler nicht gegen sich gelten zu lassen.
4. Doppeltätigkeit
Der Makler ist berechtigt, für beide Seiten des beabsichtigten Vertrages provisionspflichtig tätig zu werden.
Provision für Käufer:
3,57% Käuferprovision inkl. ges. MwSt. Nach erfolgreichem Abschluss eines notariellen Kaufvertrages entrichtet der Käufer an den Makler diese Provision vom wirtschaftlichen Kaufpreis.
_______________________________________________________________
Interesse an dieser Immobilie? Sie planen parallel den Verkauf Ihrer Immobilie?
Wir organisieren zeitgleich den Abverkauf Ihrer jetzigen Immobilie.
Wir bieten Ihnen eine kostenfreie Bewertung Ihrer Immobilie an.
Wir beraten Sie gerne!
Rufen Sie uns an unter 0821 / 6509490 oder senden uns eine kurze eMail
an info@immoprofi-wolkersdorfer.de
________________________________________________________________
Keine Dokumente vorhanden
Anbieter / Makler
Ansprechpartner
Peter Wolkersdorfer
00498216509490
augsburg@immoprofi-wolkersdorfer.de
